Рулонные шторы имеют вид жалюзи. Они удобны в своем применении. Их основные преимущества – это легкость в эксплуатации, неприхотливость в уходе, долговечность и способность полностью перекрывать доступ света и обзор помещения через окно в нужный момент. Выбрать рулонные шторы для современных окон надо так, чтобы они украшали жилище человека и создавали уют и приносили пользу. Определить вид, который будут иметь рулонные шторы, лучше в тот момент, когда солнце максимально освещает комнату. Тогда наступает лучшее время, чтобы обдумать, на каком цвете следует остановить свой выбор.

Пошив рулонных штор не представляет особых трудностей, главное, правильно закрепить рулонную конструкцию.
При выборе фактуры тканей в обязательном порядке учитывают материал элементов интерьера.
Ответ на вопрос о том, какие рулонные шторы лучше всего подобрать, зависит от многих параметров.
Нужно учитывать сочетание цветов мебели, деталей интерьера, цвета стен, размеров комнаты, ее местоположения и степени освещенности. Используя советы по выбору, можно принять решение о правильной покупке рулонных штор, которые будут функционировать длительное время.
Какие рулонные шторы лучше выбрать?

Схема рулонной шторы.
Выбор штор зависит от интерьера комнаты, на окнах которой они будут использоваться. Рулонные шторы можно использовать на любых стеклопакетах. Это современный стильный элемент декора, который используются как в офисах, так и в домашних условиях. Когда надо выбирать, какие шторы использовать для окон, часто останавливают свой выбор на практичных, функциональных эстетичных рулонных шторах. Тяжелые портьеры в современных жилищах уходят из употребления, потому что люди все больше стремятся к свободе и простоте.
По своему виду такие занавеси могут быть свободно висящими или кассетного типа. Свободно висящие занавеси устанавливают так, чтобы они полностью закрывали проем окна, как гардины, или монтируют их в оконный проем. Другой вид – это рулонные шторы кассетного типа, которые устанавливаются на каждую створку.
Если стены оклеены однотонными обоями, то лучше всего на окна подойдут пестрые расцветки. Самый лучший вариант встречается тогда, когда выбранный цвет повторяет тон обстановки или обивку мягкой мебели.
Не подходят для штор ткани, рисунок которых повторяет узор на обоях, наклеенных в комнате.

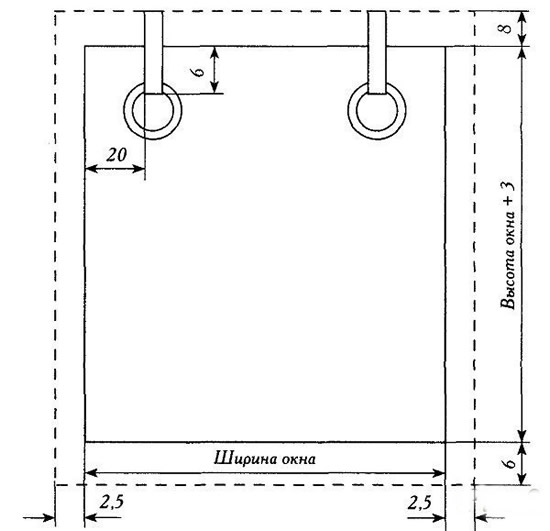
Размеры для рулонных штор.
Цвет «черный шоколад» хорошо комбинируется со всеми оттенками коричневого. Если в интерьере имеется бежевый или кремовый, то такой выбор цвета придаст комнате изысканный вид.
Цвет «бордо» уравновесит комнату, в интерьере которой имеются белые и золотистый тона. Синие занавески традиционно сочетаются с желтым фоном комнаты. Если стены и мебель имеют белый цвет, то окна декорируются яркими, даже кричащими тканями с абстракциями, геометрическими узорами или азиатскими мотивами.
В небольших помещениях с низкими потолками можно визуально расширить общее пространство комнаты, используя полупрозрачные ткани.
Рисунок из поперечных полос визуально расширяет стены, а из вертикальных делает комнату выше.
Голубые, серые, фиолетовые тона относятся к холодным оттенкам. Они создают ощущение прохлады в комнате. Все природные оттенки земли дают ощущение тепла. Поэтому северные комнаты требуют штор ярких теплых тонов. Особенно хороши оранжевые цвета для создания ощущения тепла в холодной комнате. Дизайнеры рекомендуют для таких комнат золотистые, желтые оттенки различных тонов. В классическом интерьере отлично будут смотреться плотные шторы с классическим рисунком или полосой. Для стиля кантри выбирают легкие и полупрозрачные рулонные шторы. Для кухни нужно выбрать рисунок с цветами, листьями или абстрактным ненавязчивым узором. Обязательно надо учитывать сочетание цвета и узора рулонных штор с декором комнаты. При выборе строгого фона темных оттенков можно создать в любимом для всех месте офисную атмосферу, и это не пойдет на пользу семейным отношениям.
Рулонные шторы с рисунком

Выкройка рулонных штор.
Пестрые ткани с абстрактным рисунком используются для придания интерьеру законченности стиля. В различных странах есть традиционные расцветки. Можно создать у себя в квартире уголок полюбившейся страны, используя шторы в интерьере. Англичане предпочитают использовать ткани с цветочным рисунком. В Шотландии распространена клетка, а во Франции особенно любимы полосатые шторы. В России наблюдается всеобщая любовь к пестрому ситцу. Все эти рисунки можно встретить на рулонных шторах.
Популярным стало использование для изготовления рулонных занавесей сетчатого полотна, имеющего различную цветовую гамму. В таком материале имеются полиэстеровые волокна, которые придают изделию специфический блеск. Используется в изготовлении сетчатого полотна штор металлизированная нить, придающая оригинальность модным занавескам.
Как правильно выбрать рулонные шторы в детскую комнату?

Схема установки рулонных штор.
Детская комната – место в квартире, где должна царить атмосфера любви и добра. С помощью рулонных штор можно легко регулировать естественную освещенность комнаты в светлое время суток. Яркие солнечные лучи, заливающие комнатное пространство детской комнаты, часто мешают работать за компьютером. Световые блики мешают просмотру телевизионных программ и мультфильмов. Рулонные шторы, установленные на окне, помогут перекрыть в нужный момент прямое проникновение яркого солнечного света и избавят ребенка от перенапряжения глаз. Традиционные шторы из текстиля не подходят для детских комнат. Они собирают много пыли, во время игры ребенок их может снять. Детям сложно правильно закрывать и открывать традиционные занавеси. Использование рулонных штор в детской позволяет ребенку самостоятельно регулировать степень затемнения комнаты, что бывает очень важным для него.
Чтобы ребенку в комнате было комфортно, для штор лучше всего выбрать тканевое полотно. Предпочтение в данном случае лучше отдать рулонным шторам под хлопок и лен. Для детской лучше всего подойдет ткань black-out, имеющая способность полного затемнения. Такой выбор поможет в ночное время суток перекрыть попадающий из окна лунный свет и искусственный свет уличных фонарей, обеспечить ребенку здоровый сон. Использование штор, имеющих такие характеристики, позволяет создать комфортный климат для отдыха малышей днем.

Схема сборки механизма рулонных штор.
Выбирая нужную окраску, не стоит отдавать предпочтение рисункам, имеющим диковинные узоры. Шторы долговечны, а детские рисунки ребенку быстро надоедают. Он может начать их совершенствовать и тем самым портить рулонные занавески. Если остановиться на спокойном дизайне шторы в детской, то ребенок может концентрировать на них свое внимание и учиться размышлять. В выборе расцветок лучше всего придерживаться легких светлых тонов, потому что темные оттенки подавляют психику ребенка.
Рулонные шторы – это лучший вариант для дизайна комнаты, предназначенной для детей, потому что у этих изделий имеются отличные характеристики по оптическим, огнестойким и дизайнерским свойствам, и они являются экологически безопасными.
Функции, выполняемые рулонными шторами
Все рулонные шторы оснащены функцией защиты обоев и мебели от выгорания. Они отлично закрывают помещение от любопытных глаз прохожих. Они сочетаются с обычными шторами, которые можно использовать в паре с ними. Жалюзи современного типа используют при сильной освещенности помещения, регулируя количество естественного света в комнате. Такие изделия – отличная защита от холода зимой. Они не нуждаются в тщательном уходе. В продаже имеются разнообразные элементы для их крепления, которые соответствуют цвету.
У человека, выбравшего такие занавески, есть возможность создать оригинальный дизайн, потому что существует услуга печати заказанных изображений.
Выбирайте оригинальные шторы в виде жалюзи нужной именно вам модификации, руководствуясь личными пожеланиями и имеющимися условиями, и делайте вашу жизнь более комфортной.



